Putra Majestik 4 Storey Shop-office & Residence, Jalan Ipoh For Sale

[caption id="attachment_108" align="aligncenter" width="500" caption="Putra Majestik Overview, Jalan Ipoh"]Putra Majestik Overview, Jalan Ipoh[/caption] 6 Units of 4 Storey Shop office with lift available
  • 22' x 70'
  • Freehold
  • Selling at RM2,450,000 (negotiable)
  • Rent at RM4.50 - RM5.00 psf
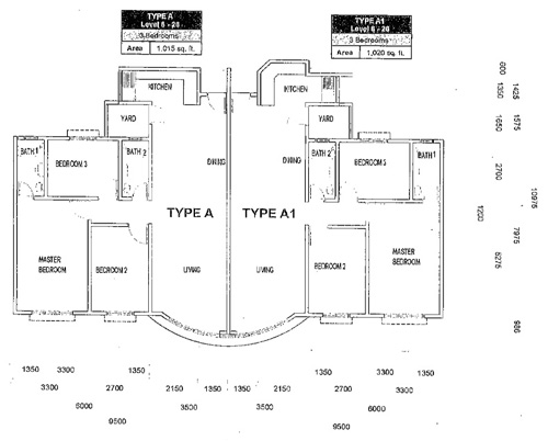
Residential Units available [caption id="attachment_117" align="aligncenter" width="500" caption="Putra Majestik Residential Type A & Type A1"]Putra Majestik Residential Type A & Type A1[/caption] With KL City View
  • Type A, 1015 sf
  • Type A1, 1020 sf
  • 3 Bedrooms, 2 Bathrooms
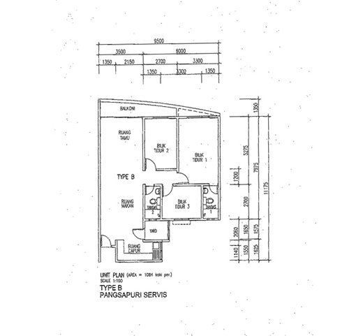
[caption id="attachment_116" align="aligncenter" width="500" caption="Putra Majestik Residential Type B Layout Plan"]Putra Majestik Residential Type B Layout Plan[/caption] With Kenny Hill View
  • Type B, 1084 sf
  • 3 Bedrooms, 2 Bathrooms
  • With Balcony
[caption id="attachment_109" align="aligncenter" width="500" caption="Putra Majestik Carpark"]Putra Majestik Carpark[/caption] [caption id="attachment_110" align="aligncenter" width="500" caption="Putra Majestik Shop Office each unit has 1 lift"]Putra Majestik Shop Office each unit has 1 lift[/caption] Property Description The development site of The Majestik City is ideally located approximately 5KM north west of the Centre Business District of KL. It is approchable from City Centre via Jalan Kuching or Jalan Tun Raza, linking Jalan Ipoh before urning off onto Jalan Kasipilay. Strategically located just adjacent to Sentul East & Sentul West, a city park home concept development undertaken by YTL Group and directly besides the billion dollar vibrant Mega Shopping Complex known as The Revercity undertaken by AP Land Berhad. The Majestic City together with its neighbours are fast transforming the facade of Jalan Ipoh into a new prominent landmark of Kuala Lumpur.
  • Land Area 4.862 ac
  • Developed by Bioford Development Sdn. Bhd.
  • Three Blocks of Luxurious Service Residence
  • 619 units of service residence (40% SOLD)
[caption id="attachment_111" align="aligncenter" width="500" caption="Map to Putra Majestik"]Map to Putra Majestik[/caption] Contact person Vivian Ng at +6012-3847410
You May also like
Post Author

Join The Discussion

Leave a Reply

Categories

Total pageviews

  • 1,259,385 views

Email Subscription

Enter your email address to subscribe to this blog and receive notifications of new posts by email.

Join 2,220 other subscribers

Contact Us

Hartanah Realty
Estate Agent License: E(3)1569

160-1-5 Kompleks Maluri,
Jalan Jejaka,
Taman Maluri,
55100 Kuala Lumpur
Tel: +603-92003312
Fax: +603-92009312

Contact Persons:
May Keng
Mobile: +6019-3033311
Email: maykeng88@gmail.com

Vivian Ng
Mobile: +6012-3847410
Email: vivdaviva@gmail.com

Contact Us

Latest Posts

28 Boulevard Pandan Perdana 2 Storey Detached Commercial Building For Sale

28 Boulevard Pandan Perdana 2 Storey Detached Commercial Building For Sale

LeaseholdBuilt up : 12800 sf More information can contact 012-2190090.